Skip to main content
Skip to footer
Sapphire Homes
About
Floor Plans
Developers
Contact
About
Floor Plans
Developers
Contact
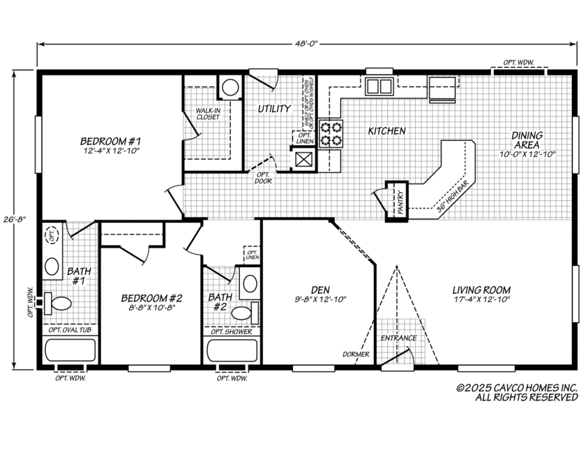
Sandpointe Model 28482A
2 Bed
2 Bath
Size:
1280 ft
2
Footprint:
28" x 48'
Base Price:
$106567
Overview Sheet
Customization Options
Explore More Homes