Skip to main content
Skip to footer
Sapphire Homes
About
Floor Plans
Developers
Contact
About
Floor Plans
Developers
Contact
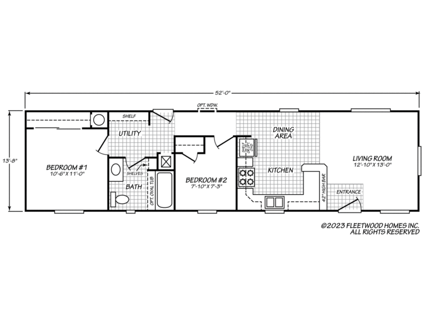
Sandpointe Model 14522A
2 Bed
1 Bath
Size:
709 ft
2
Footprint:
14" x 52'
Base Price:
$66574
Explore More Homes