Skip to main content
Skip to footer
Sapphire Homes
About
Floor Plans
Developers
Contact
About
Floor Plans
Developers
Contact
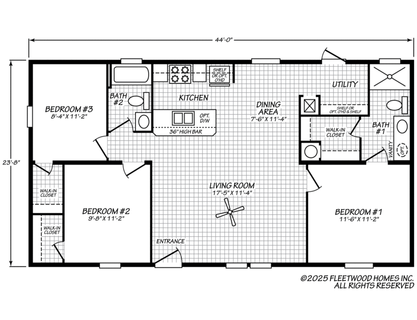
Pure Model 24443U
3 Bed
2 Bath
Size:
1026 ft
2
Footprint:
24' x 44'
Base Price:
$88147
Explore More Homes