Skip to main content
Skip to footer
Sapphire Homes
About
Floor Plans
Developers
Contact
About
Floor Plans
Developers
Contact
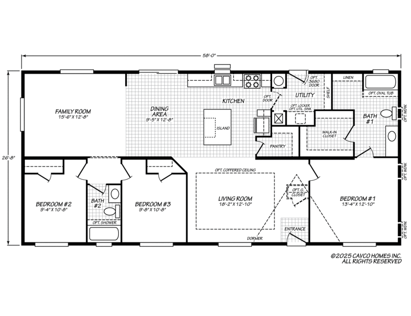
Evergreen Model 28583F
3 Bed
2 Bath
Size:
1546 ft
2
Footprint:
28' x 58'
Base Price:
$129552
Explore More Homes