Skip to main content
Skip to footer
Sapphire Homes
About
Floor Plans
Developers
Contact
About
Floor Plans
Developers
Contact
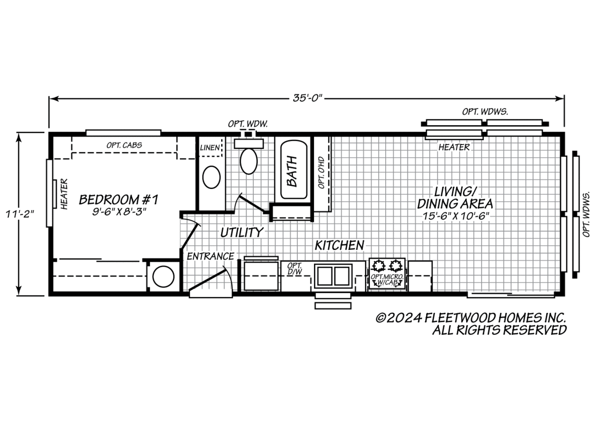
Cascadia Special Edition Model 12351Y
1 Bed
1 Bath
Size:
399 ft
2
Footprint:
12' x 35'
Base Price:
$54005
Explore More Homes